- 概览
-
规格参数
订货号
CPU226H,,,,72KB程序空间/110KB数据空间,,,,24VDC电源,,,,14DI/10DO晶体管漏型输出,,,,0.5A,,,,2个PPI/自由通讯口,,,,6路200KHz高速计数,,,,4路200KHz输出(Pulse/Dir),,,,使用威客电竞运控库,,,,集成直线、圆弧插补,,,,数据永世生涯,,,,支持模拟量、CAN和RS485扩展板
CTS7 216-1AH35-2B24
- 手艺参数
-
手艺参数
物理特征 尺寸(宽×高×深)
137×80×62mm
功耗
7W
存储器特征
程序存储器
24KB+48KB
数据存储器
10KB+100KB
数据生涯
FlashROM永世生涯
通例特征
准时器总数
1ms
10ms
100ms
256
4
16
236
计数器总数
256
内存存贮器位
256位
内存存储位掉电坚持时间
永世坚持
时间中止
64字节自力
顺序控制继电器(S)
256位
时间中止
2个1ms区分率
边沿中止
4个上升沿和/或4个下降沿 (I0.0,,,,I0.1,,,,I1.1,,,,I1.5)
模拟电位器
无
布尔量运算执行时间
0.15?s
浮点运算执行时间
8?s
时钟
内置
BD扩展板接口数
1个,,,,支持RS485扩展板、CAN扩展板、模拟量扩展板
系统指示灯
3个,,,,STOP、RUN、SF
RUN/STOP拨码
有,,,,2态
电池卡接口
支持,,,,电源缺乏2.0V,,,,报警位SM195.0
编程卡
支持
存储卡
支持
额定输入电压
DC24V
电源供应
本机及扩展总线+5V
+24V
660mA
280mA
集成的通讯功效
通讯接口
2个通讯口:
PORT0:PPI/自由口,,,,标准RS485电平
PORT1:PPI/自由口,,,,标准RS485电平
插上RS485扩展板并重新启动之后,,,,PORT0牢靠为PPI口不可切换,,,,自由口FP0设置到RS485扩展板。。。。
PPI波特率(baud)
9.6kbps、19.2kbps和187.5kbps
自由口波特率(baud)
1.2kbps ~ 115.2kbps
每段最大电缆长度
使用隔离中继器
未使用隔离中继器
波特率为187.5kbps时1000米,,,,38.4kbps时1200米
50米
最大站点数
每段32个站,,,,每个网络126个站
最大主站数
32
点到点(PPI主站模式)
是(NETR/NETW),,,,最多8个毗连,,,,每个毗连最大通讯200个字节
MPI毗连
(1PG/1OP)共8个,,,,2个保存
I/O特征
本机数字量输入点数
14
输入类型
漏型/源型
本机数字量输出点数
10
输出类型
漏型
数字I/O映象区
640DI/640DQ(含CAN通讯专用映像区)
模拟I/O映象区
194AI/194AQ(含CAN通讯专用映像区)
允许最大扩展I/O????槭
7
最大数字量I/O设置
128DI/128DO
最大模拟量I/O设置
32AI/32AO
脉冲捕获输入
14
高速计数器
总数
单相计数器
两相计数器
6
6×200KHz
4×200KHz
集成通讯功效(CANopen)-扩展CAN通讯板型号CTH2-CAN-01S2-EB时使用
通讯接口
1个(8 Pin端子)”见CANopen通讯接口表”
传输率(kbps)
1000
800
500
250
150
50
20
最大长度(m)
25
50
100
250
500
1000
2500
最大站地点
127
站点地点规模
1-127
最大主站带从站数
32
设置方法
CAN组态块和EDS文件
最大数字量会见
通俗IO
CANopen专用IO
字节数
内存起始地点
字节数
内存起始地点
输入
16
IB0
输入
64
IB16
输出
16
QB0
输出
64
QB16
最大模拟量会见
通俗IO
CANopen专用IO
通道数
内存起始地点
通道数
内存起始地点
输入
32
AIW0
输入
162
AIW64
输出
32
AQW0
输出
162
AQW64
集成通讯功效(CANFree)-扩展CAN通讯板时型号CTH2-CAN-01S2-EB时使用
通讯协议
CanFree
使用方法
通过内部库指令支持
数字量输入特征
本机集成数字量输入点数
14
输入类型
漏型/源型
额定电压
24V DC
最大一连允许电压
30V DC
逻辑1信号 ( 最小)
逻辑0信号 ( 最大)
15 VDC,,,,2.5mA
5 VDC,,,,1mA
隔离(现场与逻辑)
500V AC,,,,1分钟
同时接通的输入
14
最大电缆长度
屏障
非屏障
500米(标准输入)
50米(高速计数器输入)
300米(标准输入)
数字量输出特征
本机集成数字量输出点数
10
输出类型
固态-MOSFET,,,,漏型
额定电压
DC:24V
输出电压规模
DC:5~28.8V
逻辑1信号(最。。。。
VCC减0.5V DC
逻辑0信号(最大)
0.5V DC,,,,10KΩ负载
每点额定电流
0.75A
每个公共端额定电流
4A
泄电流(最大)
10uA
浪涌电流(最大)
8A,,,,100ms
灯负载(最大)
3.75W
高速脉冲输出最大频率
4路2000KHz (Pulse/Dir)
接通电阻(接点)
典范值0.15Ω,,,,最大0.32Ω
隔离(现场与逻辑)
500VAC 1分钟
延时
断开到接通:0.2us(Q0.0- Q0.7),,,,---50us(其它)
接通到断开:0.2us(Q0.0- Q0.7),,,,---50us(其它)
额定负载下的触点寿命
不适用
同时接通的输出
所有输出点
两个输出并联
是,,,,仅在输出同组时
最大电缆长度
屏障
非屏障
500米
150米
*支持新版V2编程卡
*超等电容掉电坚持时间约为100个小时,,,,扩展电池为200天
*电池卡电量缺乏报警功效:低于2V时,,,,报警位SM195.0
控制端子及通讯端口
端子接线
CTS7-216-1AH35-2B24接线端子

RS485通讯接口
毗连器
插针号
PORT1/FPORT1(RS485)
PORT0/FPORT0(RS485)
1
机壳接地
机壳接地
2
+24V地
+24V地
3
RS485+信号B
RS485+信号B
4
发送申请
发送申请
5
+5V地
+5V地
6
+5V,,,,100Ω
+5V,,,,100Ω
7
+24V
+24V
8
RS485-信号A
RS485-信号A
9
NC
NC
毗连器外壳
机壳接地
机壳接地
RS485扩展板通讯接口
????榻涌谟毗连器
引脚
FPORT0(RS485)
注:需要使用终端电阻时,,,,将2脚和3脚短接。。。。
1
RS485+信号B
2
RS485-信号A
3
终端电阻
4
机壳接地
5
RS485信号GND
6
NC
7
NC
8
NC
9
NC
- 典范应用
-
系统设置计划
系统可以由一个单独的CPU主控????樽槌,,,,可由一个CPU外加最多7个种种型号的可选扩展????组成,,,,还可以一个单独的CPU外加BD扩展????樽槌。。。。

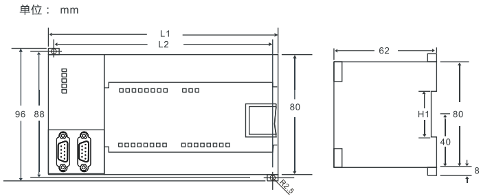
- 装置规格
-
产品的装置和运行要求
装置尺寸

PLC型号
L1(mm)
L2(mm)
CTS7 216-1AH35-0B24
137
129
CTS7 216-1AH35-2B24
137
129
装置和牢靠方法
使用DIN35标准导轨。。。。

- 样本/手册/软件






